Sun Microsystems, Inc.
spacer spacer
spacer   Sun System Handbook Home | Systems | Components | General Info | Search | Feedback 
spacer
black dot
 
black fade
 

Remote System Control (RSC2)

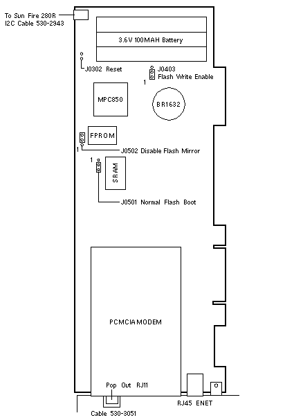
Sun Fire 280R

501-4901
RSC2 A

Note

Sun Fire 280R requires the RSC to set OBP as a Workgroup Server.

References

  1. Sun Fire 280R Server Owner's Guide, 806-4806.
  2. Remote System Control 2.0 User's Guide, 806-0426.
  3. Remote System Control 2.1 Release Notes, 816-0562.
  4. Remote System Control 2.2 User's Guide, 816-3314.



Remote System Control (RSC2)

Sun Fire 280R
Sun Fire V480
Sun Fire V880

501-5856
RSC2 B

Notes

  1. Sun Fire 280R requires the RSC to set OBP as a Workgroup Server.
  2. RSC 2.0 in the Solaris 8 1/01 Supplement CD requires patch 110800.
  3. Sun Fire V480 requires RSC2 >=501-5856-05.

References

  1. Sun Fire 280R Server Owner's Guide, 806-4806.
  2. Remote System Control 2.0 User's Guide, 806-0426.
  3. Remote System Control 2.1 Release Notes, 816-0562.
  4. Remote System Control 2.2 User's Guide, 816-3314.

WebToneWebToneWebToneWebTone
 Copyright 1994-2003 Sun Microsystems, Inc.,  901 San Antonio Road, Palo Alto, CA 94303 USA.  All rights reserved.
 Legal Terms Privacy Policy Feedback